
情報 | 詳細内容 |
|---|---|
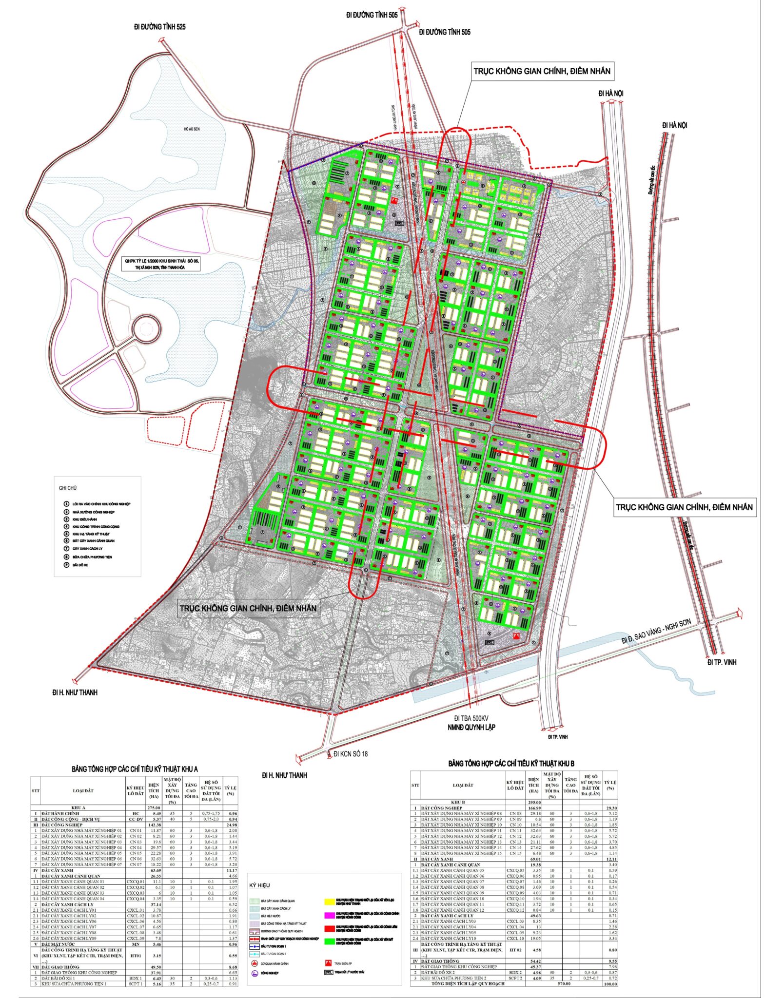
所在地 |
- ギーソン経済区 Công Chính コミューンの行政区域内に属する。
- 北南高速道路沿いに位置し、Thọ Xuân空港から42km、国道1Aから約30km、Hạc Thành区中心から54km、ハノイから190km。 |
面積 |
570 ha、工業用地309.37 ha |
充足率 |
0% |
特性と機能 |
ハイテク産業、再生可能エネルギー産業、クリーン産業、裾野産業、研究開発応用産業、農林産物加工産業などを優先的に開発する多産業工業団地。 |
技術インフラ |
更新中 |
収容能力 |
更新中 |
総投資資本 |
更新中 |
投資家 |
更新中 |
投資誘致状況 |
更新中 |






実施機関
タンホア省人民委員会事務局
ウェブサイトリンク
Đơn vị thiết kế bộ tài liệu xúc tiến đầu tư:
Công ty Công nghệ Truyền thông Minh Khang (MKA)